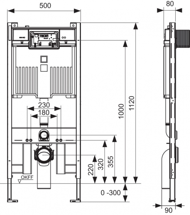
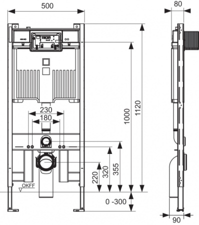
Модуль унитаза для крепления на профиле TECEprofil или в металлических или деревянных каркасных стенах, монтажа перед стеной или в углу; также подходит для сборки отдельного блока.
Сливной бачок Octa II 8 см, для фронтально расположенной панели смыва:
- Надежный бачок из ударопрочного пластика, протестирован в соответствии с EN 14055
- Предварительно собранный и опломбированный сливной бачок
- Соединение для сливного бачка с наружной резьбой R 1/2“ сверху, подходит для адаптеров быстрого подсоединения
- Объем бачка 7 литров; предустановленный объем большого смыва 6 литров, можно настроить объем смыва 4,5 литра; объем малого смыва 3 литра в системе двойного смыва; возможность установки объема смыва 4/2 литра.
- Изоляция для предотвращения образования конденсата
- Для панелей смыва унитаза ТЕСЕ
- Можно использовать в качестве сливного бачка с системой одинарного или двойного смыва
- Система установки панелей смыва „easy fit“
- Монтажный туннель для технологического отверстия, может быть укорочен без инструментов
- Бесшумный гидравлический заливной клапан, группа фитингов 1, в соответствии с DIN 4109
Комплект поставки модуля:
- Несущая монтажная рама с порошковым покрытием
- Крепление для монтажа перед стеной
- Две крепежные шпильки M12 с гайками
- Фановый отвод унитаза DN 90/90 PE-HD, включая защитную заглушку
- Соединительный комплект унитаза DN 90
Дополнительно приобретается:
- Панель смыва унитаза (см. панели смыва)
- Крепежные элементы для монтажа отдельных блоков перед стеной, в углах или в деревянных каркасных конструкциях
- Прокладка звукоизоляционная (арт. 9200010)
- Алаптер фанового отвода 90/110 мм (арт. 9820136)
Внимание!
С данным модулем невозможна установка электронных панелей смыва TECE и контейнера для гигиенических таблеток. Минимальная монтажная глубина 80мм возможна исключительно при подводе канализации из пола!
Оформить заказ на нашем сайте легко!
Просто добавьте выбранные товары в корзину, а затем перейдите на страницу Корзина, проверьте правильность заказанных позиций и нажмите кнопку «Оформить заказ» или «Быстрый заказ».
Если вам нужно больше информации о том, как оформить заказ самостоятельно, переходите по ссылке.
Если вы хотите оформить заказ по телефону или вам нужно больше информации о товаре, позвоните нам или напишите в любой мессенджер
+7 (495) 1-777-302Оплачивайте покупки удобным способом. В интернет-магазине доступно 4 варианта оплаты:
Наличные при самовывозе или доставке курьером. Специалист свяжется с вами в день доставки, чтобы уточнить время и заранее подготовить сдачу с любой купюры. Вы подписываете товаросопроводительные документы, вносите денежные средства, получаете товар и чек.
Банковской картой при получении. Оплатить заказ банковской картой можно как в нашем офисе, так и с помощью мобильного POS-терминала у курьера. Если вы хотите, оплатить при получении картой, пожалуйста укажите это в заказе.
Безналичный расчет при самовывозе или оформлении в интернет-магазине. Для выставления счета пришлите на электронный адрес info@pro-tece.ru:
1. Ваши реквизиты, для юридических лиц
2. ФИО, для физ. лиц,
3. Список и количество оборудования.
Оплата картой на сайте осуществляется с помощью платежного шлюза ПАО СБЕРБАНК. Соединение с платежным шлюзом и передача информации осуществляется в защищенном режиме с использованием протокола шифрования SSL. В случае если Ваш банк поддерживает технологию безопасного проведения интернет-платежей Verified By Visa или MasterCard SecureCode, для проведения платежа также может потребоваться ввод специального пароля. Здесь нужно ввести номер карты, срок действия и имя держателя.
Получайте ваши заказы в удобное для вас время!
Подробная информация о сроках и условиях доставки доступна по ссылке.
Если Если у вас остались вопросы или вам нужно больше информации, позвоните нам или напишите в любой мессенджер
+7 (495) 1-777-302
